Inklusives Wohnprojekt | Schüttorf
Startseite
Entwürfe
„WohnSinnHaus“-Konzept
Über uns
Mitglied werden / Spenden
Impressum
Startseite
Entwürfe
„WohnSinnHaus“-Konzept
Über uns
Mitglied werden / Spenden
Impressum
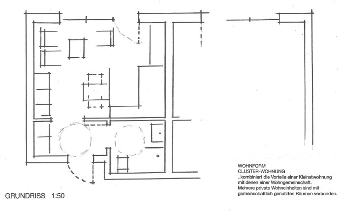
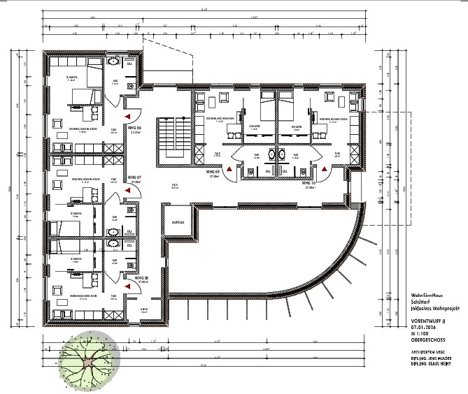
Entwürfe